Português
  English
  Español

 

Haga clic para ver las fotos relacionadas


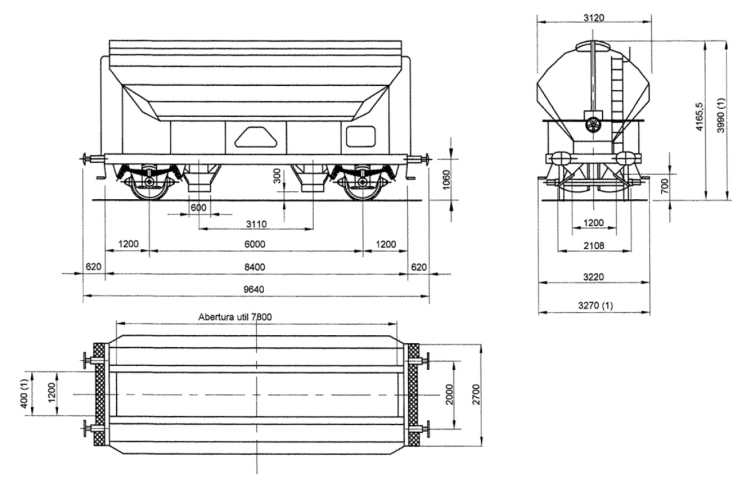
Tdgs (41 94 074 0 001/100 * e 41 94 074 1 001/200 **)



Constructor Equimetal
Año de Construcción 1973* e 1977**
Velocidad Máxima 100 Km/h
Tara Media 13.800 Kg
Plena Carga 26.200 Kg
Ruedas 1000 mm
Caja de Grasa Rodamientos de Rodillos
Cigüeñal 130 x 217 mm
Freno KE GP 15-28 t
Freno de Vacio

13-22 t. Entretanto retirado. Conduto de passo

Freno manual máximo 9 Ton
Cilindros de Aire 1 x 12''
Regulador DRV 2A - 450
Distribuidor KE 1c SL
Caja "Vacio-Carga" LAB-3R
Válvula "Vacio-Carga" VA 2
Volumen Útil 38.000 L

Volver al Gabinete Técnico