Português
  English
  Español

 

Haga clic para ver las fotos relacionadas


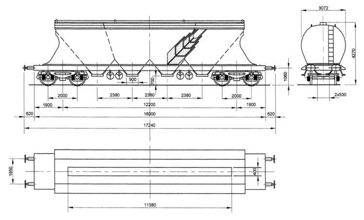
Tadgs (32 94 082 3 001/050)



Constructor Metalsines
Año de Construcción 1989/90
Velocidad Máxima 120 Km/h
Tara Media 24.000 Kg
Plena Carga 56.000 Kg
Ruedas 920 mm
Caja de Grasa Rodamientos de Rodillos
Cigüeñal 130 x 217 mm
Freno KE GP 28-52 t
Freno de Vacio

No Tiene. Possui conduta de passagem

Freno manual máximo 24 t
Cilindros de Aire 2 x 12''
Regulador DRV 2A - 300
Distribuidor KE 1c SL
Caja "Vacio-Carga" LAB-3R
Válvula "Vacio-Carga" VAT
Volumen Útil 75.000 L

Volver al Gabinete Técnico