Português
  English
  Español

 

Haga clic para ver las fotos relacionadas


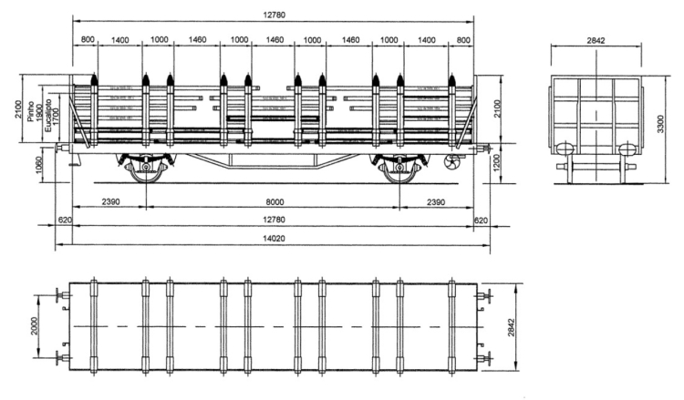
Kbs (41 94 333 0 001/084 * e 41 94 333 0 001/092 **)



Constructor Simmering
Año de Construcción 1970
Modificado por CP/EMEF
Año de Modificación 2005
Velocidad Máxima 100 Km/h
Tara Media 14.200 Kg * + 16.300 Kg **
Plena Carga 25.800 Kg * + 23.700 Kg **
Ruedas 1.000 mm
Caja de Grasa Rodamientos de Rodillos
Cigüeñal 130 x 217 mm
Freno KE GP 17-26 t
Freno manual máximo 21 t
Cilindros de Aire 1 x 12''
Regulador DRV 2A - 450
Distribuidor KE 1c SL * / C3W LV GP **
Caja "Vacio-Carga" LS3-KA TYPE
Válvula "Vacio-Carga" MV Type
Superficie Útil 33 m2

Volver al Gabinete Técnico