Português
  English
  Español

 

Haga clic para ver las fotos relacionadas


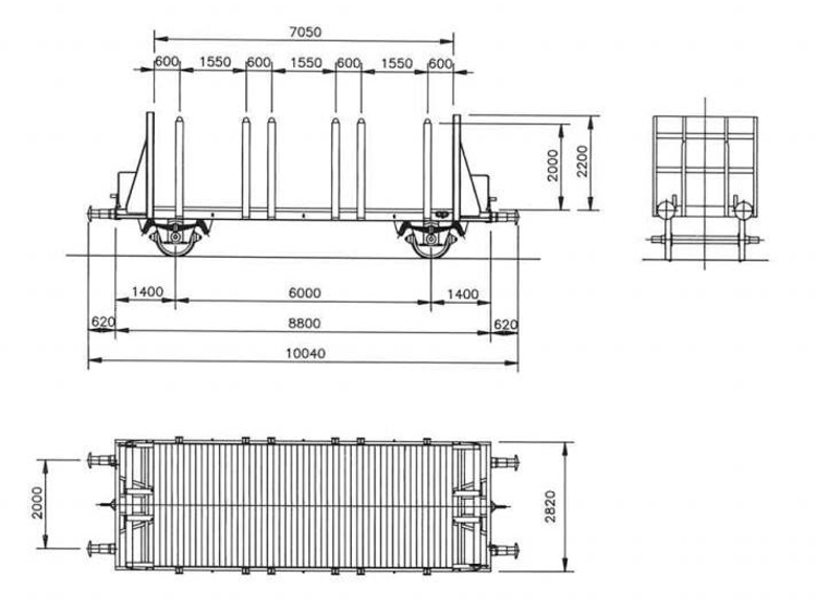
Kbkkmps (41 94 322 0 001/063)



Constructor Westwagon A.G. Werk Gastell
Año de Construcción 1944
Modificado Metalsines
Año de Modificación 1991
Velocidad Máxima 100 Km/h
Tara Media 10.300 Kg
Ruedas 970 mm
Caja de Grasa Rodamientos de Rodillos
Cigüeñal 120 x 145 mm
Freno KE GP 11-24 t
Freno de Vacio

Retirado (tien conducto de paso)

Freno manual máximo No Tiene
Cilindros de Aire 1 x 12''
Regulador DRV 2A - 450
Distribuidor KE 1c SL
Caja "Vacio-Carga" LC-3R
Superficie Útil 24 m2
Volumen Útil 63 m3

Volver al Gabinete Técnico