Português
  English
  Español

 

Click here to see the related pictures


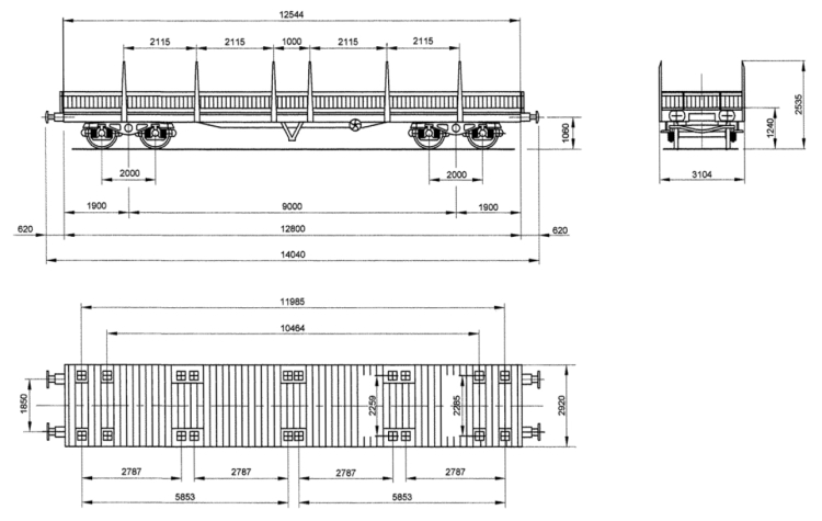
Regmms (32 94 356 3 001/100)



Builder Metalsines
Construction Year 1987
Max. Speed 120 Km/h
Medium Tare 22.500 Kg
Maximum Load 60.600 Kg
Wheels 920 mm
Axle Bearing TBU 130-SKF Cartridge
Axle Journal 130 x 217 mm
KE GP Brake 27-51 t
Max. Hand Brake 24 t
Mudança de Regime Aut. 44 t
Cylinders 1 x 16''
Brake-rod Adjuster DRV
Triple Valve KE 1c SL
"Unloaded-Loaded" Box LAB
"Unloaded-Loaded" Valve VTA
Floor Space 36,5 m2

Return to the Technical Center