Português
  English
  Español

 

Click here to see the related pictures


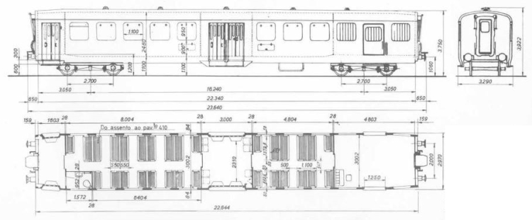
2nd Class (51 94 21-22 001/040) *



2nd Class with Luggage Compartment (51 94 82-22 006/009) **



Builder Schindler
Construction Year 1949/50
Max. Speed 120 Km/h
Medium Tare 31.200 Kg * + 30.800 Kg **
Maximum Load 7.500 Kg * + 7.500 Kg **
Capacity 92 * + 72 **
Wheels 850 mm
Axle Bearing Roller Bearing
Axle Journal 115 x 105 mm
Cylinders 2 x 24''
Brake Capacity Aut. 30 + Manual 35
Heating Westinghouse
Steam Pipe
Lighting 1 Dynamo

Return to the Technical Center