Português
  English
  Español

 

Click here to see the related pictures


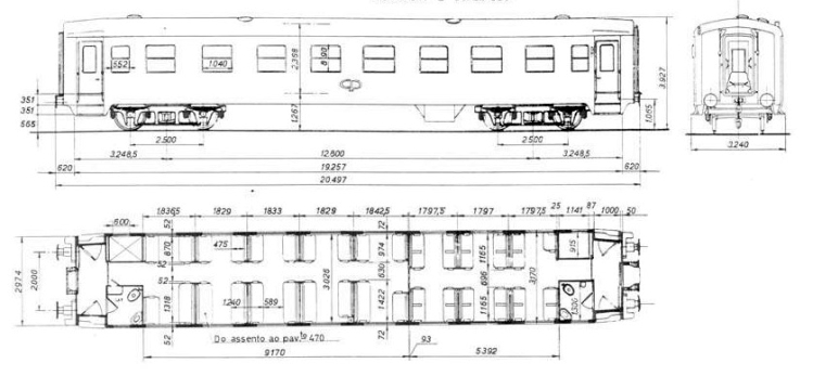
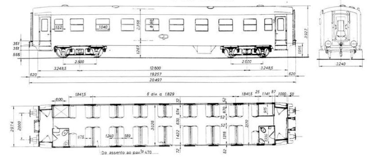
2nd Class (51 94 29-22 001/059) *



Mixed 1st and 2nd Class (51 94 81-22 001/009) **



Rebuild by Oficinas do Barreiro
Rebuild Date 1961 * + 1969 **
Max. Speed 120 Km/h
Medium Tare 41.000 Kg * + 40.000 Kg **
Maximum Load 6.500 Kg
Capacity 77 * + 70 (23 on 1st and 47 on 2nd)**
Wheels 1.040 mm
Axle Bearing Roller Bearing
Axle Journal 115 x 216 mm
Cylinders 2 x 24''
Brake Weight Aut. 36 + Manual 23
Heating Westinghouse
Steam pipe
Lighting 1 Dynamo

Return to the Technical Center